房天下>青岛二手房>崂山二手房>浮山前二手房>金海湾别墅二手房

金海湾挑空独栋别墅 沿海低密度独栋 地理位置优越

分享

微信扫一扫分享好友
更多分享>

收藏

下载房天下APP
楼盘动态及时知

基本信息
建筑年代2014年
有无电梯
产权性质 个人产权
挂牌时间 2024-12-30
梯户比例 暂无数据
供暖方式 暂无数据
房屋结构 平层
抵押信息 暂无数据
楼层高度 暂无数据
上次交易 暂无数据
房源动态
  • -
    房源浏览(人)
  • -
    房源带看(次)
  • -
    关注房源(人)
  • 当前房源报价为:3200.00万
    2026-02-02

微信扫码查看更多

房源描述
  • 核心卖点
    雕塑园沿海挑空独栋 停车方便 带独立大院

    别墅位置安静,不临街不靠路,地上两层带阁楼,占地一亩。院子方正,停车方便。

    小区属沿海首排住宅,出门南行米即雕塑园沿海风景区,享受沙滩海景与5公里的海岸线!北行0米就是浮山森林公园!距金狮购物广场和利群金鼎广场1500米,出生和生活都比较方便。

    小区是1996年建成,沿海比较罕见的独栋小区,小区60栋独栋,面积220-380平不等,户户带院,停车方便。装修属于20多年的老式装修,装修以及外立面防水,室内防潮都需要重新做。
  • 业主心态
    房东置换,诚心出售,价格可以再谈,欢迎看房,随时恭候。
  • 税费分析
    新房: 房税费首套房契税1至3个点。维修基金60元一平方物业费2元到3元一平方。别墅商铺另算
  • 小区配套
    位置:小区地理位置,绿化,居民素质高配套:有健身器材,小型篮球场,可供小区居民使用 车位:停车位充足,建有地上停车场和地下车库 保安:小区内24保安巡逻
  • 服务介绍
    本人从事房地产多年,公司有大量好房源,欢迎进入我的店铺查看,欢迎随时电话咨询,相信我的,为您置业安家保驾护航。
房源图片
室内图
室内图
室内图
室内图
室内图
室内图
室内图
室内图
室内图
室内图
室内图
室内图
室内图
室内图
室内图
室内图
室内图
室内图
室内图
室内图
室内图
室内图
室内图
室内图
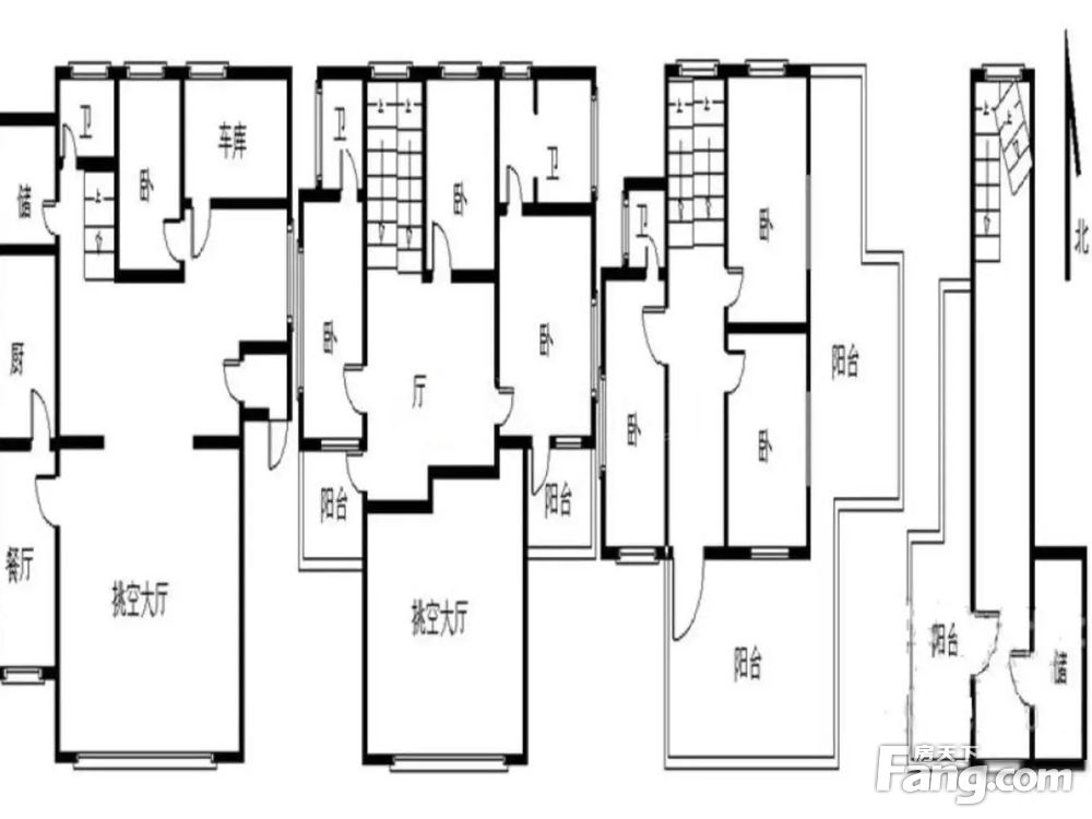
户型图
户型图
3200
满五满五
5室2厅3卫
户型
380.28平米
建筑面积
84149元/平米
单价
进门朝向
3层
地上层数
豪华装修
装修程度
小      区
金海湾别墅(距2号线海安路站约599米)
区      域
青岛伍辰房地产营销策划有限公司
闪电回复
金海湾别墅小区信息
参考均价124480元/平米
同比去年↓5.04%
环比上月↓0.32%
收藏
物业类型 别墅
物业费用0.7元/㎡·月
建筑类型独栋
建筑年代1997年
绿 化 率40%
容 积 率0.8
人车分流
总楼栋数60
总 户 数60
小区图片
周边配套
免责声明:房源信息由网站用户提供,其真实性、合法性由信息提供者负责,最终以政府部门登记备案为准。本网站不声明或保证内容之正确性和可靠性,购买该房屋时,请谨慎核查。入学情况仅凭历史经验总结,在此不承诺升学事宜。请您在签订合同之前,切勿支付任何形式的费用,以免上当受骗。